
Table of Contents
Structural engineering has existed since humans first started to construct their own house. Structural engineers design, and assess structure to ensure that they are efficient and stable. Structural analysis is a comprehensive determination to assure that the deformations due to load in a structure will be satisfactory and lower than the permissible limits, and failure of structure will never occur.It is a method by which we find out how a structure or a member of a structure behaves when subjected to different loads. The results of the analysis are used to verify the structure’s strength for its uses. Structural analysis is thus a key part of structural engineering.
The process to determine the response or behaviour of a structure under some specified loads or combinations of loads is known as structural analysis. Response means to find out support reactions, bending moment, rotation, stresses, strains, shear force, and deflection that, the particular member would undergo due to the application of different types of loads. Analysis of a structure involves its study from the viewpoint of its strength, stiffness, stability, and vibration.
For a structural engineer to start a structural design, he/she must have the loads, or forces and moments that a particular member and the structure as a whole have to resist. Unless there are determined the design cannot start. Hence structure analysis is condition precedent to structural analysis.
The structure we are going to build is assumed to have some specific lifespan. We are going to design it in such a way that it must be capable of taking all applied load (dead as well as live) without failure during its lifespan. So, before the design, we have to determine the behaviour of structure under different load conditions. The structure is analyzed for different load combination like gravity load, live load, wind load, earthquake load apart from effects of nature and environment etc.

When any member or structure is loaded, it will undergo direct compression or tension or bending or torsion. It will get deformed. The material of that member or structure will resist load. So, that process to find out shear force, bending moment, deflection, rotation, shear stress and strain is known as structural analysis.
Structural analysis deals with a calculation of load coming on the structure and analyzing them. It is a procedure followed to find and measure the effect of external forces on physical objects like built structure elements. Structural analysis is the main tool that structural engineers use to assure that a structure can withstand various types of forces that it will encounter during its normal operation. It is used to predict the behaviour of the structure upon loads acting on them. Structural analysis is important because the design of element sizes, material to be used for structural elements are done on the basis of structural analysis.
The objective of analysis of a structure from the viewpoint of its strength is calculating internal forces, which will arise in all members of a structure as a result of external exposures.

The objective of analysis of stability of a structure is to determine the loads on a structure, which leads to presence of new forms of equilibrium.
The objective of analysis of a structure from the viewpoint of its stiffness is the determination of the displacements at specified points of a structure as a result of external exposures.
The objective of analysis of a structure from the viewpoint of its vibration is to determine the frequencies and correlative shapes of the vibration. These data are necessary for analysis of the forced vibration caused by loads like earthquake, wind etc.
Analysis of any structure is based on some assumptions. These assumptions consider the purpose and features of the structure, type of loads and operating conditions, properties of materials, etc.
Because of modern day calculation loads available, the structural analysis is divided into three large principal groups.
- Static analysis
- Dynamic analysis
- Stability analysis
- Vibration analysis
The structural analysis is based on engineering mechanics, mechanics of solids, experience and engineering judgment. For structural analysis, one must have known about the behaviour of structural elements, mathematics, and basic physics and mechanics. For assumed section, one has to find reactions, moments so that resulting stress, strain, etc.
After selection of materials and before starting the structural analysis, one has to know physical and chemical properties of materials like modulus of elasticity, plasticity, density etc.

The structural analysis is a mathematical process by which the response of a structure to specified loads and actions is determined. This response is measured by determining the stress resultants or internal forces and deformations or displacements throughout the structure.
The analysis process is done by making some assumption. In the analysis, i.e. we assume the dimensions of all the structural elements, loads, material properties, and support conditions. The sizes are generally assumed either from experience or by thumb rule which has been arrived at empirically and historically. And we have to find reactions like force, bending moment, deflection, rotation, stress, and strain at each and every point of the structure, which are the basic data that we need for structural design.
To execute an accurate analys is a structural engineer must collect information such as structural loads, geometry, support conditions, and material properties. The results of such an analysis mostly include support reactions, stresses and displacement. These data are then compared to criteria that indicate the conditions of failure.
Steps for Analysis of Structure
- Structural Idealization
- Applying Loads
- Calculating Reactions
- Calculating Internal Forces
- Calculating Internal Stresses
- Evaluating Efficiency and safety
Structural Analysis Method
- Analytical Method
- Method using Numerical Approximation
- Finite Element Method
Fundamental Approaches of Structural Analysis
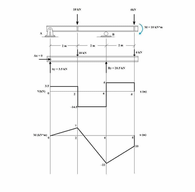
There are two major approaches to the analysis of any structure. The first one is related to the analysis of a structure subjected to given fixed loads and is called the fixed load approach. The outcome of this analysis are diagrams, which show a distribution of internal forces (bending moment, shear, and axial forces) and deflection for the entire structure due to the given fixed loads. These diagrams indicate the most unfavourable point (or member) of a structure under the given fixed loads.
The second approach considers that a structure is subjected to unit concentrated moving load only. The results of the second approach are graphs which are called the influence lines. Each influence line represents the distribution of internal forces in the one specified section of a structure.
Modes of Structural Analysis
Structural analysis is carried out by observation of the real structure, on a model of the structure created on some scale, and by the use of mathematical models. When elements of the main structures are to be examined, then models are used for the estimation of the different loads. Most structural analyses are executed on the mathematical models, in which the model can be elastic or inelastic, forces may be static or dynamic, and the model of the structure might be two dimensional or three dimensional.
Structural analysis is important as it provides a basis for structural design and also it evaluates whether a specific structural design will be able to withstand external and internal stresses and forces. The structural analysis helps to determine the cause of a structural failure. The purpose of the structural analysis is to design a structure that has the proper strength, safety, and rigidity. It will than allow to proportion member and its detailing, joints.
Must Read:
Difference Between Beam & Lintel in Structural System
Difference Between Concrete Beam & Column
Difference Between Flat Slab & Conventional Slab-Beam System
Difference Between Reinforced Concrete & Steel Framed Structure
Image Courtesy: Image 1
































